Via Montebello appartamento 3 letto
Italiano
Fai un salto di qualità...
Fai un salto in Gabetti per vendere, per acquistare, per affittare.

Via Montebello appartamento 3 letto

430.000 €
125 m2
3 Camere
2 Bagni
Codice
RF328
Città
Ferrara (Centro storico)
Categoria
Appartamento
Spese condominiali
1.200 €
Locali
5
Piano
1
Classe energetica
F
263,3 kWh/m²a
Stato Immobile
Ottimo
Grado
Signorile
Posizione
Centro Storico
Lati Liberi
2
Arredi
Possibilità
Tipo Soggiorno
Soggiorno
Tipo Cucina
Abitabile
Riscaldamento
Autonomo
Tipo Riscaldam.
Caldaia a Condensazione
Tipo Impianto
Radiatori
Fonte Energetica
Metano
Acqua Calda
Autonoma
Raffrescamento
Split
Infissi
PVC Triplo Vetro
Serramenti
Nuovo
Accessori
Aria Condizionata, Doppi Vetri, Ripostiglio, Zanzariere
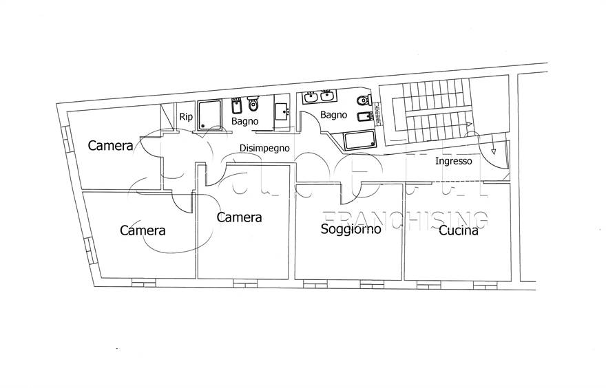
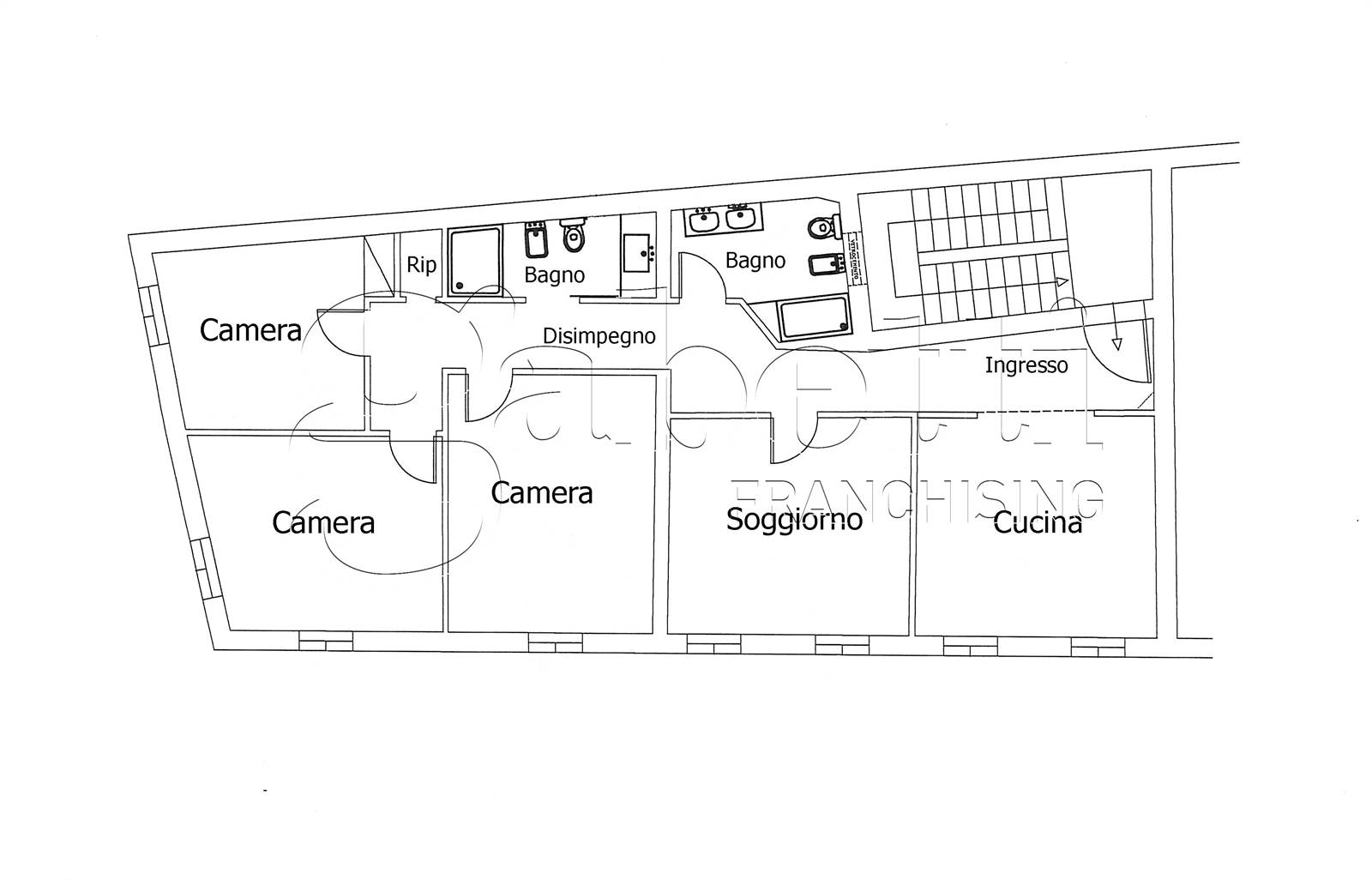
VIA MONTEBELLO, ricavato dall'antico Monastero di Santa Monica, luminoso appartamento di recente ristrutturazione, posto al primo piano.

L'abitazione si compone di: ingresso, generosa cucina abitabile, soggiorno, 3 camere da letto, 2 bagni, ripostiglio.
Cantina e locale al piano terra di 11mq, con accesso indipendente e carrabile.

Infissi interni ed esterni di ultima generazione, riscaldamento autonomo, aria condizionata.
Piccolo e grazioso contesto condominiale dotato di terrazzo.

Il complesso si affaccia su una delle arterie secondarie dell'Addizione Erculea, via tra le più importanti del centro, come testimonianza dell'architettura rinascimentale ferrarese.

Mappa

Via Montebello , Ferrara (FE)

Agenti venditori

Fabbretti Rita

Fabbretti Rita

Uff +39 0532 200170
Uff +39 0532 977147
Uff +39 0532 767874
[email protected]

Richiedi informazioni

Invia

Ti consigliamo anche

250.000 €
Appartamento In Vendita a Ferrara
1 Camere 1 Bagni 101,96 m2
410.000 €
Appartamento In Vendita a Ferrara
3 Camere 2 Bagni 135 m2
125.000 €
Appartamento In Vendita a Ferrara
1 Camere 1 Bagni 85 m2

Condividi

Cookie preference